9 5904 VEDDER ROAD|Vedder CrossingChilliwack, BCV2R3E7




Mortgage Calculator
Monthly Payment (Est.)
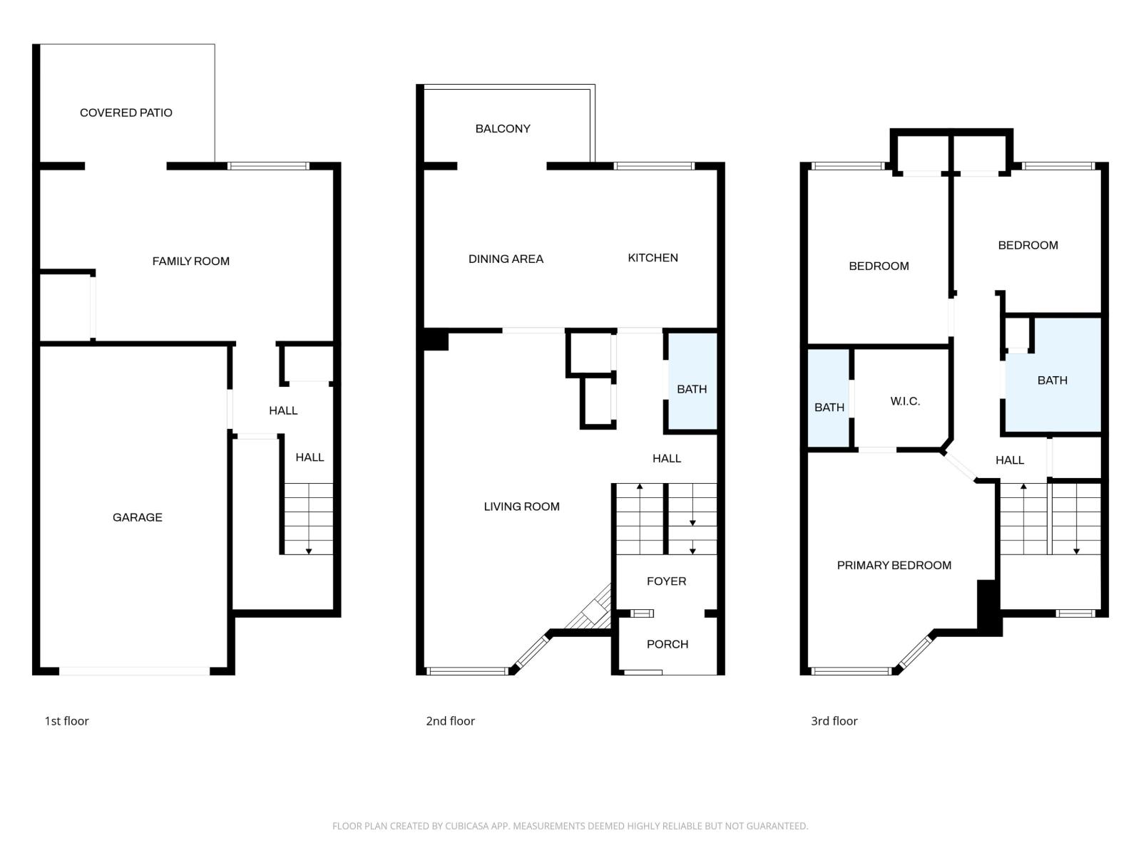
$2,441Located in the family-friendly Parkview Place complex in central Sardis, this well-maintained 3-bedroom, 3-bathroom townhouse offers a convenient location close to schools, shopping, parks, and everyday amenities. Upgrades completed in April 2025 include a new heat pump, high-efficiency furnace, and hot water tank. The home also features a whole-house water filtration system at the main inflow valve, reducing chlorine and sediment and providing cleaner water throughout. A move-in-ready home in a desirable, centrally located community, with the added bonus of a driveway that can accommodate a full-size vehicle. (id:31684)
| 16 hours ago | Listing updated with changes from the MLS® | |
| 16 hours ago | Listing first seen on site |
The trademarks MLS®, Multiple Listing Service® and the associated logos are owned by The Canadian Real Estate Association (CREA) and identify the quality of services provided by real estate professionals who are members of CREA. Used under license.
The trademarks REALTOR®, REALTORS®, and the REALTOR® logo are controlled by The Canadian Real Estate Association (CREA) and identify real estate professionals who are members of CREA. These trademarks are owned or controlled by The Canadian Real Estate Association (CREA) and identify real estate professionals who are members of CREA (REALTOR®) and/or the quality of services they provide (MLS®).
This REALTOR.ca listing content is owned and licensed by REALTOR® members of The Canadian Real Estate Association.
Did you know? You can invite friends and family to your search. They can join your search, rate and discuss listings with you.